物件詳細おすすめ
| 所在地 | 秋田県仙北市田沢湖田沢字春山 | 価格 | 応相談 |
|---|---|---|---|
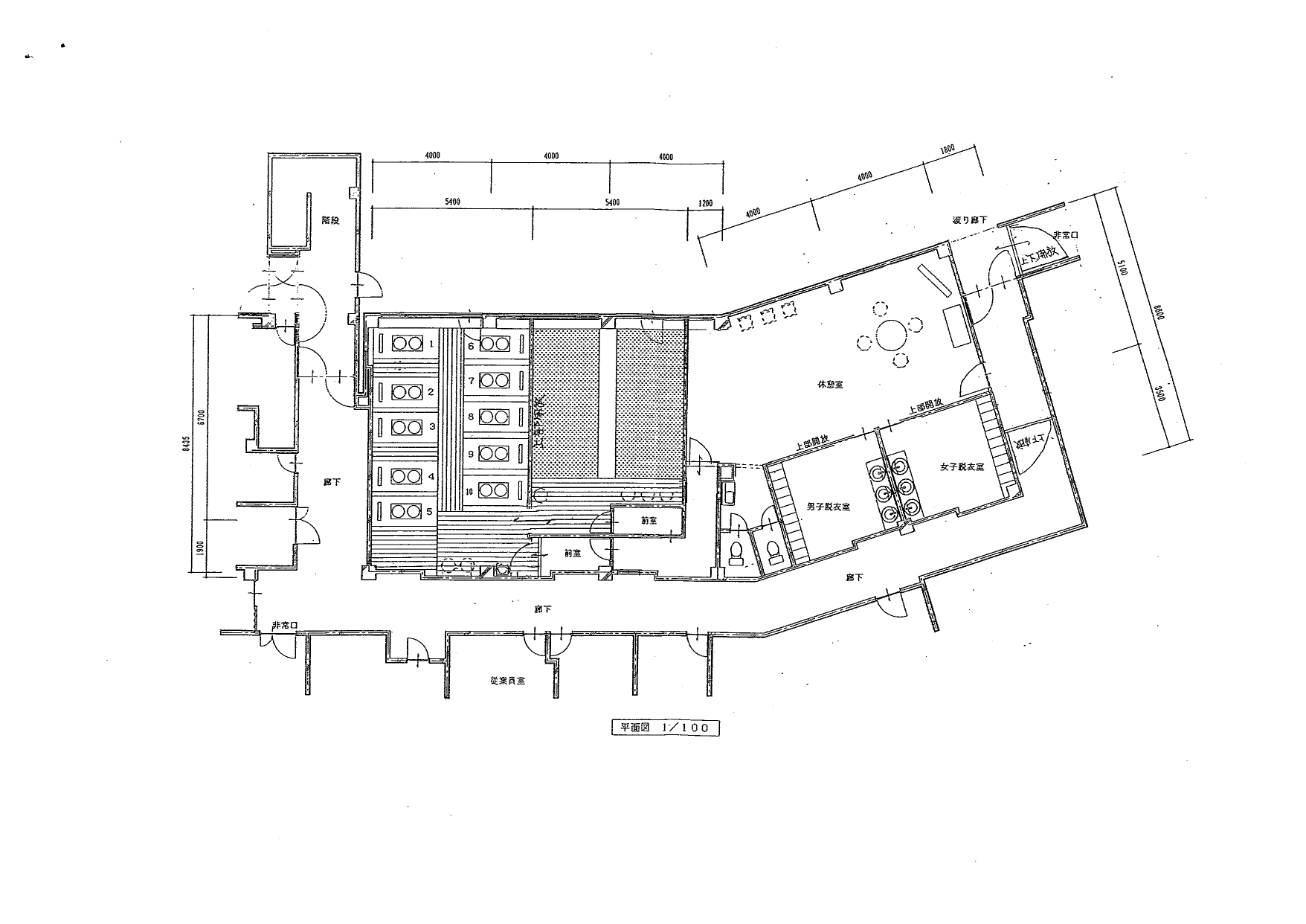
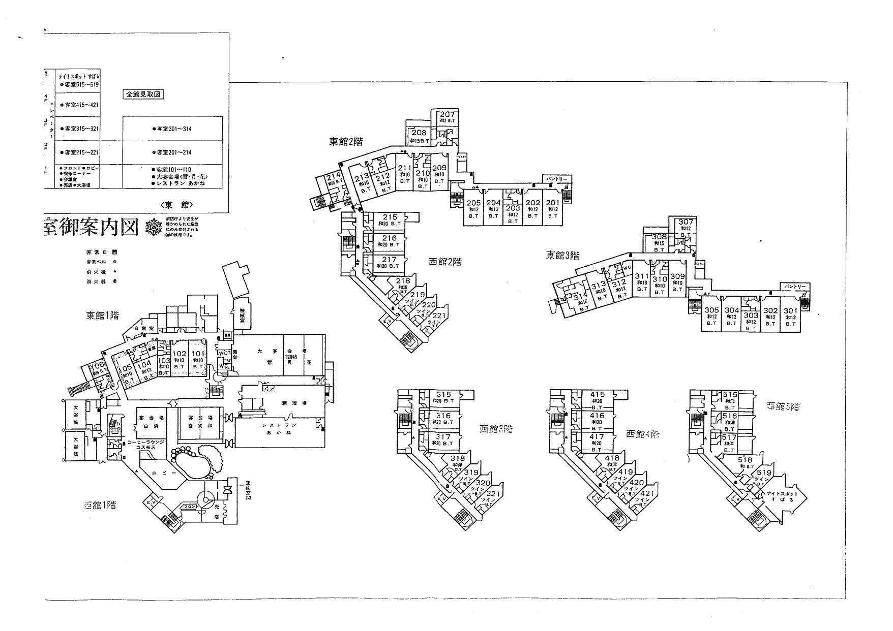
| 種類 | 旅館 | 床面積 | 1階 1228.10㎡ 2階 667.33㎡, 3階 652.39㎡ |
| 構造 | 鉄骨造亜鉛メッキ鋼板葺き3階建 | 築 | 昭和37年12月30日新築 昭和49年3月30日増築 |
| 建物面積 | 間取り | ||
| 種類 | 旅館 | 建ぺい率 | |
| 容積率 | 引き渡し | 要相談 | |
| 設備 | 取引形態 | 仲介 |
| 所在地 | 秋田県仙北市田沢湖田沢字春山 | 価格 | 応相談 |
|---|---|---|---|
| 種類 | 旅館 | 床面積 | 1階 1228.10㎡ 2階 667.33㎡, 3階 652.39㎡ |
| 構造 | 鉄骨造亜鉛メッキ鋼板葺き3階建 | 築 | 昭和37年12月30日新築 昭和49年3月30日増築 |
| 建物面積 | 間取り | ||
| 種類 | 旅館 | 建ぺい率 | |
| 容積率 | 引き渡し | 要相談 | |
| 設備 | 取引形態 | 仲介 |